60‘x134’x32’6″ Used Metal Building For Sale in California
JOB ID: CA1711
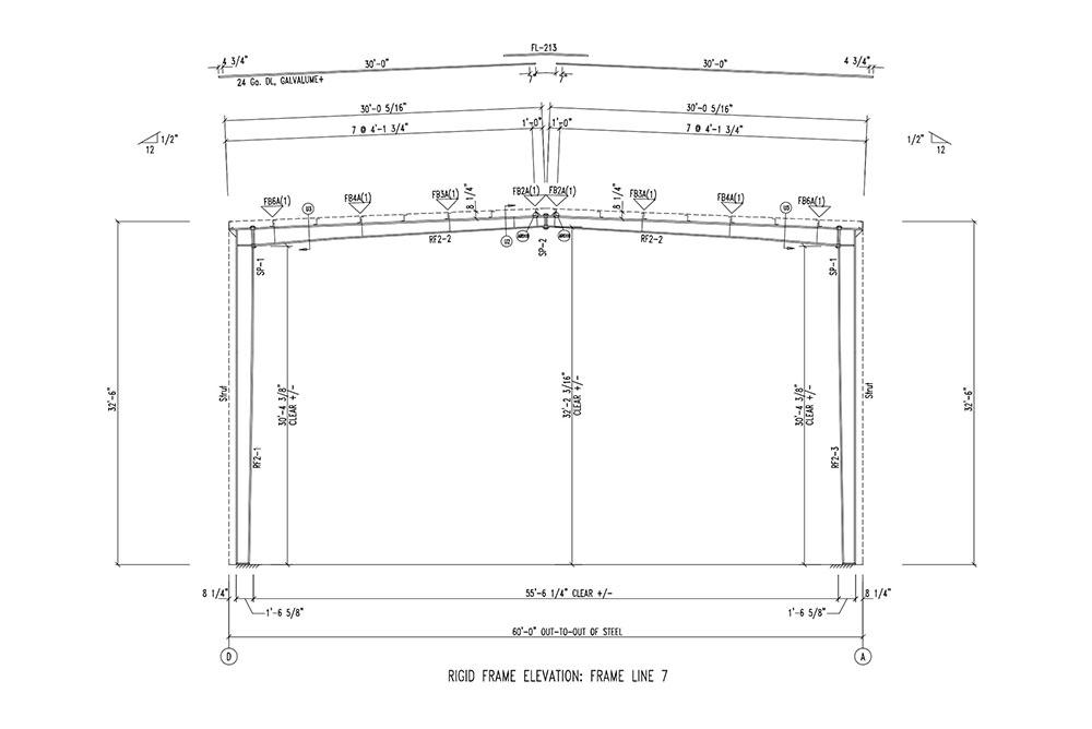
New Never Erected Metal Building 60 x 134 x 32’6”
Our customer took delivery but decided not to complete their project.
This is a canopy with a standing seam roof, skylights, and gutters with downspouts.
It comes with the California engineered stamped building plans, foundation plans and ready to load.
Call 1-800-292-0111.







