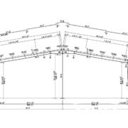
100x400x28 Metal Building | JOB ID: UT1706
This is a 100x400x28 Warehouse Building, the Building can be spilt into (2) 100 X 200’s if requested.
Discounted 35% Must sell ASAP.
Customer put down a deposit and can’t come up with thee balance owed. Building is ready to ship. Brand new from the factory!
It has a 30lb roof snow load and a 35 lb ground snow load, 115 mph Wind Rating –
Exposure C.
6 foot overhang on front side wall.
Front sidewall, and left enwall are open (*CAN BE SHEETED FOR EXTRA MONEY). Crimson red walls, white trim can’t change colors.
Call 1-800-292-0111 or click for details.










