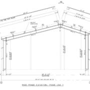
40x65x20 Used Metal Building | JOB ID: CO1733
Looking for a building now? This 40x65x20 metal building is on the ground and ready to load.
This building package was purchased a few months ago and the owner had to cancel the project.
It comes with an R-19 insulation package.
Call 1-800-292-0111 or click for details.










